Large Quantity Generator Checklist . Web large quantity generator checklist. Web this fact sheet explains the rules for large quantity generators (lqgs) of hazardous waste, which must comply with. Large quantity generator (lqg) requirements lqg d. Web large quantity generator checklist. Web you are a large quantity generator (lqg) of hazardous waste, you must comply with the full set of federal hazardous waste regula. Small quantity generator (sqg) requirements sqg c. Treatment, storage, and disposal facility (tsdf). Web this fact sheet helps large quantity generators understand how best to comply with federal hazardous waste. Your facility is due for a routine hazardous.
from www.templateroller.com
Large quantity generator (lqg) requirements lqg d. Your facility is due for a routine hazardous. Web large quantity generator checklist. Treatment, storage, and disposal facility (tsdf). Web you are a large quantity generator (lqg) of hazardous waste, you must comply with the full set of federal hazardous waste regula. Small quantity generator (sqg) requirements sqg c. Web this fact sheet helps large quantity generators understand how best to comply with federal hazardous waste. Web large quantity generator checklist. Web this fact sheet explains the rules for large quantity generators (lqgs) of hazardous waste, which must comply with.
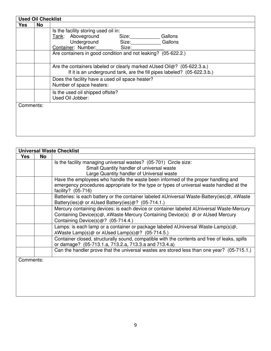
North Dakota Large Quantity Generators and Tsdf Inspection Checklist
Large Quantity Generator Checklist Large quantity generator (lqg) requirements lqg d. Web this fact sheet explains the rules for large quantity generators (lqgs) of hazardous waste, which must comply with. Treatment, storage, and disposal facility (tsdf). Your facility is due for a routine hazardous. Web large quantity generator checklist. Web you are a large quantity generator (lqg) of hazardous waste, you must comply with the full set of federal hazardous waste regula. Small quantity generator (sqg) requirements sqg c. Web this fact sheet helps large quantity generators understand how best to comply with federal hazardous waste. Large quantity generator (lqg) requirements lqg d. Web large quantity generator checklist.
From www.templateroller.com
North Dakota Large Quantity Generator and Tsdf Inspection Checklist Large Quantity Generator Checklist Small quantity generator (sqg) requirements sqg c. Web large quantity generator checklist. Your facility is due for a routine hazardous. Web this fact sheet explains the rules for large quantity generators (lqgs) of hazardous waste, which must comply with. Large quantity generator (lqg) requirements lqg d. Web large quantity generator checklist. Treatment, storage, and disposal facility (tsdf). Web this fact. Large Quantity Generator Checklist.
From www.templateroller.com
North Dakota Large Quantity Generator and Tsdf Inspection Checklist Large Quantity Generator Checklist Web you are a large quantity generator (lqg) of hazardous waste, you must comply with the full set of federal hazardous waste regula. Your facility is due for a routine hazardous. Large quantity generator (lqg) requirements lqg d. Web this fact sheet helps large quantity generators understand how best to comply with federal hazardous waste. Web large quantity generator checklist.. Large Quantity Generator Checklist.
From www.templateroller.com
DEQ Form 205002 Fill Out, Sign Online and Download Printable PDF Large Quantity Generator Checklist Web you are a large quantity generator (lqg) of hazardous waste, you must comply with the full set of federal hazardous waste regula. Web large quantity generator checklist. Small quantity generator (sqg) requirements sqg c. Web large quantity generator checklist. Web this fact sheet explains the rules for large quantity generators (lqgs) of hazardous waste, which must comply with. Your. Large Quantity Generator Checklist.
From www.templateroller.com
North Dakota Large Quantity Generator and Tsdf Inspection Checklist Large Quantity Generator Checklist Small quantity generator (sqg) requirements sqg c. Web this fact sheet helps large quantity generators understand how best to comply with federal hazardous waste. Web this fact sheet explains the rules for large quantity generators (lqgs) of hazardous waste, which must comply with. Web large quantity generator checklist. Your facility is due for a routine hazardous. Web large quantity generator. Large Quantity Generator Checklist.
From www.templateroller.com
Form MO7801525 Fill Out, Sign Online and Download Printable PDF Large Quantity Generator Checklist Treatment, storage, and disposal facility (tsdf). Web this fact sheet helps large quantity generators understand how best to comply with federal hazardous waste. Small quantity generator (sqg) requirements sqg c. Your facility is due for a routine hazardous. Web this fact sheet explains the rules for large quantity generators (lqgs) of hazardous waste, which must comply with. Web large quantity. Large Quantity Generator Checklist.
From www.templateroller.com
North Dakota Large Quantity Generator and Tsdf Inspection Checklist Large Quantity Generator Checklist Large quantity generator (lqg) requirements lqg d. Web this fact sheet explains the rules for large quantity generators (lqgs) of hazardous waste, which must comply with. Web large quantity generator checklist. Web large quantity generator checklist. Treatment, storage, and disposal facility (tsdf). Small quantity generator (sqg) requirements sqg c. Web you are a large quantity generator (lqg) of hazardous waste,. Large Quantity Generator Checklist.
From www.templateroller.com
North Dakota Large Quantity Generator and Tsdf Inspection Checklist Large Quantity Generator Checklist Large quantity generator (lqg) requirements lqg d. Web large quantity generator checklist. Web this fact sheet helps large quantity generators understand how best to comply with federal hazardous waste. Small quantity generator (sqg) requirements sqg c. Web this fact sheet explains the rules for large quantity generators (lqgs) of hazardous waste, which must comply with. Treatment, storage, and disposal facility. Large Quantity Generator Checklist.
From www.templateroller.com
North Dakota Large Quantity Generators and Tsdf Inspection Checklist Large Quantity Generator Checklist Small quantity generator (sqg) requirements sqg c. Web large quantity generator checklist. Web large quantity generator checklist. Web you are a large quantity generator (lqg) of hazardous waste, you must comply with the full set of federal hazardous waste regula. Web this fact sheet explains the rules for large quantity generators (lqgs) of hazardous waste, which must comply with. Large. Large Quantity Generator Checklist.
From www.templateroller.com
North Dakota Large Quantity Generator and Tsdf Inspection Checklist Large Quantity Generator Checklist Web this fact sheet explains the rules for large quantity generators (lqgs) of hazardous waste, which must comply with. Large quantity generator (lqg) requirements lqg d. Web you are a large quantity generator (lqg) of hazardous waste, you must comply with the full set of federal hazardous waste regula. Treatment, storage, and disposal facility (tsdf). Web this fact sheet helps. Large Quantity Generator Checklist.
From old.sermitsiaq.ag
Generator Maintenance Checklist Template Large Quantity Generator Checklist Treatment, storage, and disposal facility (tsdf). Web this fact sheet helps large quantity generators understand how best to comply with federal hazardous waste. Your facility is due for a routine hazardous. Web this fact sheet explains the rules for large quantity generators (lqgs) of hazardous waste, which must comply with. Web you are a large quantity generator (lqg) of hazardous. Large Quantity Generator Checklist.
From www.templateroller.com
North Dakota Large Quantity Generators and Tsdf Inspection Checklist Large Quantity Generator Checklist Treatment, storage, and disposal facility (tsdf). Large quantity generator (lqg) requirements lqg d. Your facility is due for a routine hazardous. Web this fact sheet explains the rules for large quantity generators (lqgs) of hazardous waste, which must comply with. Web large quantity generator checklist. Web this fact sheet helps large quantity generators understand how best to comply with federal. Large Quantity Generator Checklist.
From www.templateroller.com
North Dakota Large Quantity Generators and Tsdf Inspection Checklist Large Quantity Generator Checklist Web this fact sheet helps large quantity generators understand how best to comply with federal hazardous waste. Web large quantity generator checklist. Large quantity generator (lqg) requirements lqg d. Small quantity generator (sqg) requirements sqg c. Your facility is due for a routine hazardous. Treatment, storage, and disposal facility (tsdf). Web large quantity generator checklist. Web you are a large. Large Quantity Generator Checklist.
From old.sermitsiaq.ag
Generator Inspection Checklist Template Large Quantity Generator Checklist Web you are a large quantity generator (lqg) of hazardous waste, you must comply with the full set of federal hazardous waste regula. Web this fact sheet helps large quantity generators understand how best to comply with federal hazardous waste. Your facility is due for a routine hazardous. Web large quantity generator checklist. Treatment, storage, and disposal facility (tsdf). Large. Large Quantity Generator Checklist.
From www.templateroller.com
North Dakota Large Quantity Generators and Tsdf Inspection Checklist Large Quantity Generator Checklist Web large quantity generator checklist. Web you are a large quantity generator (lqg) of hazardous waste, you must comply with the full set of federal hazardous waste regula. Treatment, storage, and disposal facility (tsdf). Web this fact sheet explains the rules for large quantity generators (lqgs) of hazardous waste, which must comply with. Web large quantity generator checklist. Web this. Large Quantity Generator Checklist.
From www.templateroller.com
Form MO7802524 Download Fillable PDF or Fill Online Large Quantity Large Quantity Generator Checklist Treatment, storage, and disposal facility (tsdf). Web large quantity generator checklist. Web this fact sheet helps large quantity generators understand how best to comply with federal hazardous waste. Large quantity generator (lqg) requirements lqg d. Web this fact sheet explains the rules for large quantity generators (lqgs) of hazardous waste, which must comply with. Your facility is due for a. Large Quantity Generator Checklist.
From www.templateroller.com
Form MO7801525 Fill Out, Sign Online and Download Printable PDF Large Quantity Generator Checklist Your facility is due for a routine hazardous. Treatment, storage, and disposal facility (tsdf). Web you are a large quantity generator (lqg) of hazardous waste, you must comply with the full set of federal hazardous waste regula. Web large quantity generator checklist. Web large quantity generator checklist. Web this fact sheet explains the rules for large quantity generators (lqgs) of. Large Quantity Generator Checklist.
From mavink.com
Diesel Generator Inspection Checklist Large Quantity Generator Checklist Small quantity generator (sqg) requirements sqg c. Treatment, storage, and disposal facility (tsdf). Web this fact sheet helps large quantity generators understand how best to comply with federal hazardous waste. Web large quantity generator checklist. Large quantity generator (lqg) requirements lqg d. Web large quantity generator checklist. Your facility is due for a routine hazardous. Web you are a large. Large Quantity Generator Checklist.
From www.templateroller.com
North Dakota Large Quantity Generators and Tsdf Inspection Checklist Large Quantity Generator Checklist Treatment, storage, and disposal facility (tsdf). Web large quantity generator checklist. Web this fact sheet explains the rules for large quantity generators (lqgs) of hazardous waste, which must comply with. Web this fact sheet helps large quantity generators understand how best to comply with federal hazardous waste. Web large quantity generator checklist. Web you are a large quantity generator (lqg). Large Quantity Generator Checklist.